Projektdaten:
BGF: 2.200m²
BRI 6.800m³
Bauzeit: 2017-2018
Kosten: KG 2-7 Brutto 4,5Mio Euro
Ort: Stuttgart/Deutschland
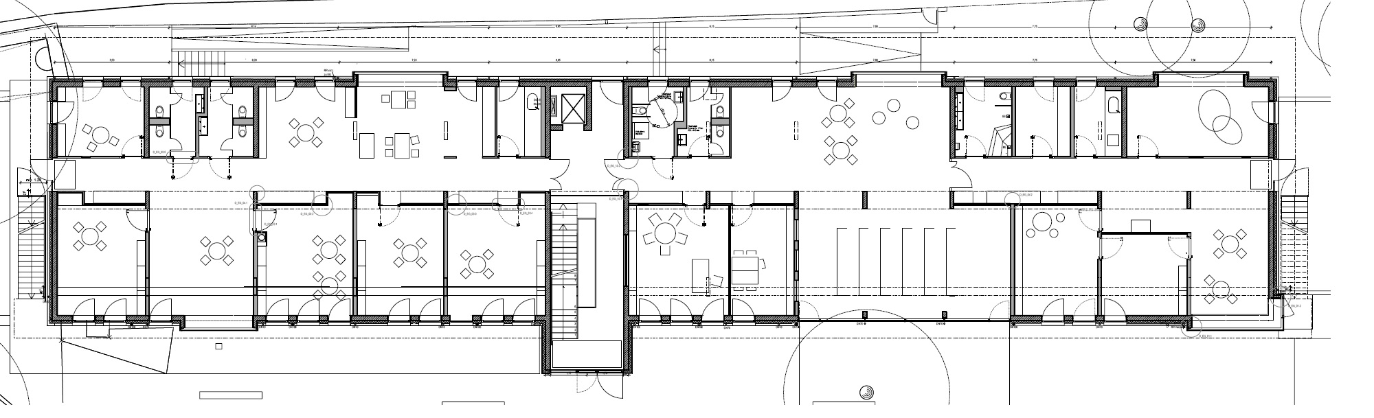
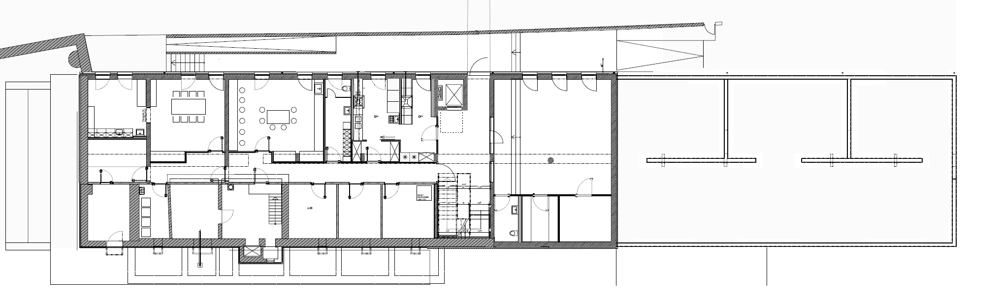
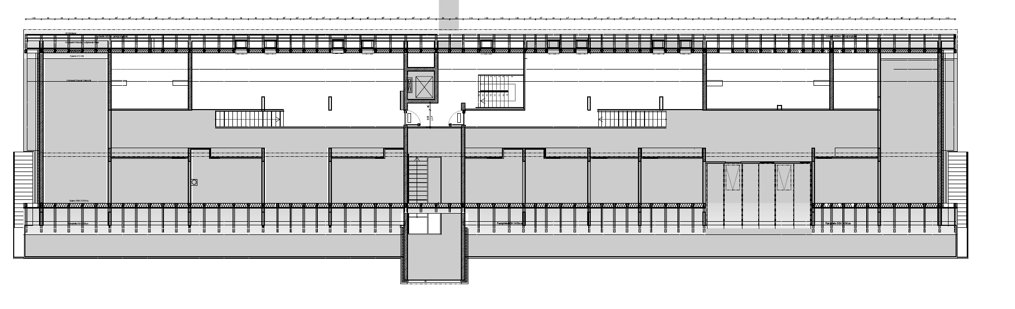
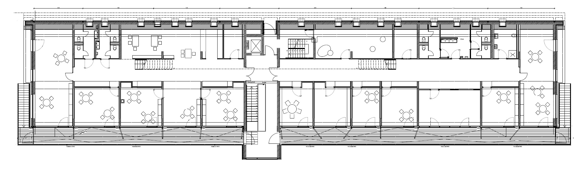
Die Kindertagesstätte in Stuttgart Rot hat zu recht aufgrund der ungewöhnlichen Architektur den Wettbewerb gewonnen. Der Entwurf besticht durch seinen lebendigen Innenraum, indem die Flure sich immer wieder mit offenen Räumen abwechseln. Das Dach mit der prägnanten Form passt sich in die Umgebung mit Satteldächern ein. Wie mit dem günstigen Einsatz von Verglasungen die Besonderheit des Hauses unterstützt werden konnte.
Werkplanung, Ausschreibung und Objektüberwachung für einen Wettbewerbsentwurf des Architekturbüro G+K, Stuttgart
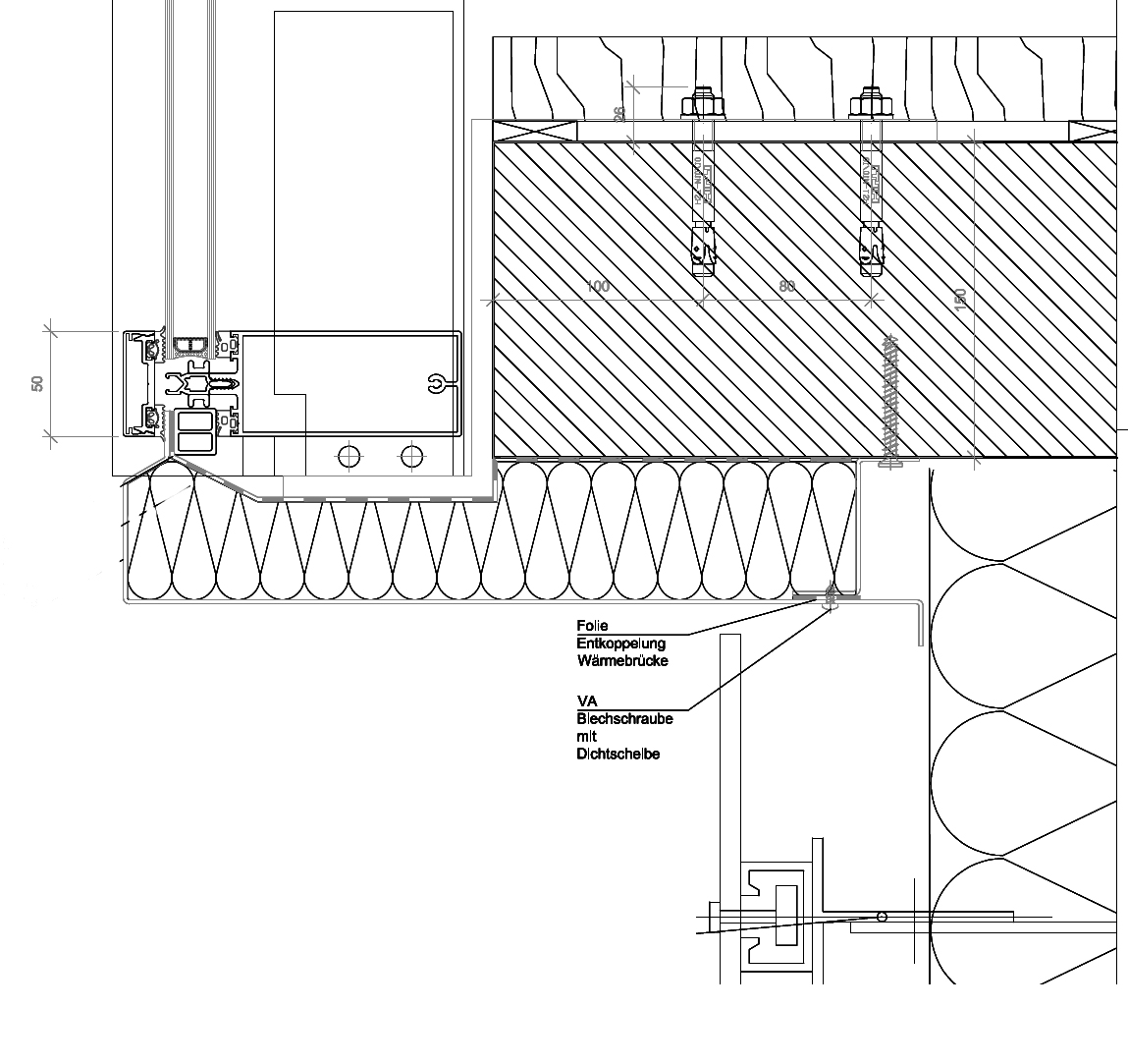
Wie auf der Skizze erkennbar, wurden durch großzügig verglaste Türen mit einem Oberlicht, das bis zur Decke reicht, die Rasterung der Stützen nachempfunden. Details des Trockenbaus und der Türen mussten daraufhin abgestimmt und geplant werden. Ebenso musste der Entwurfsgedanke auch mit Feingefühl der Details in der Fassade umgesetzt werden. Material, Farbgebung und Ausgestaltung der Ecken im Detail spielten eine dabei eine große Rolle. Beispielhaft ist ein zentrales Detail (Traufe) an dem alle Fassadengewerke beteiligt sind dargestellt. Dahinter eingeblendet ein Foto des gebauten Zustandes. Neben diesen Aufgaben war ein wichtiger Teil die Abstimmung mit den Firmen, der Bauphysik und der Statik eine zentrale Aufgabe. In diesem Projekt bestätigte sich wieder, dass die Ausfühungsplanung einen erheblichen Einfluss auf die Umsetzung des Entwurfs hat.