Projektdaten:
Fassade: ca 120m²
Bauzeit: 2016
KG 2-7 Brutto: 1 Mio sFr
Basel/Schweiz
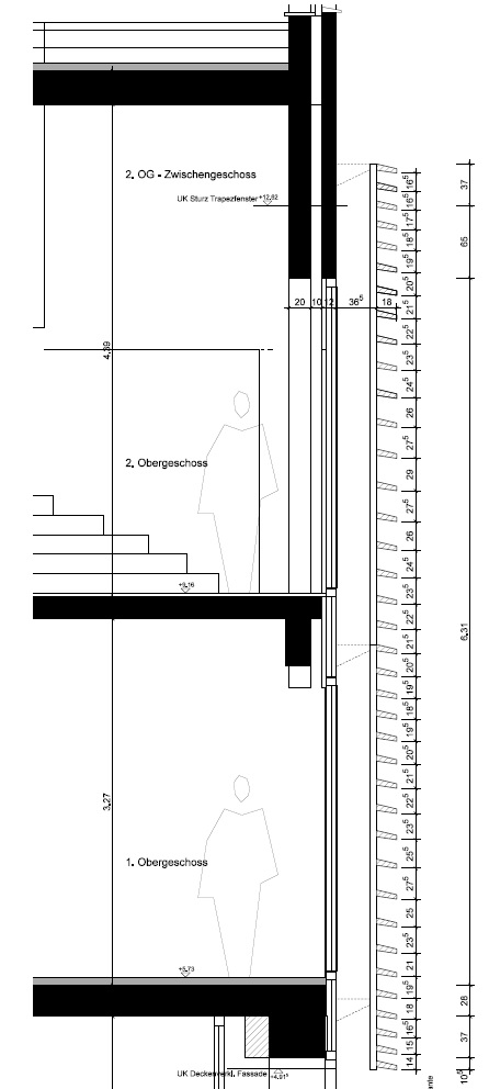
Das 1982 gebaute Kino Eldorado in der Steinenvorstad 67 wurde von der Besitzerin, der Swiss Finance & Property AG radikal umgebaut. Innen wurden die Kinosääle entfernt und mit einem Restaurant und Fittnesstudio ersetzt. Auch äusserlich musste man im Zuge der Sanierung der Glasfassade von dem angestaubten Image aus den 80iger loskommen. Eine Lösung zu finden, die die doch noch intakte sandsteinrote Waschbetonfassade beibehalten könnte, war Wunsch, um die Kosten nicht ins Unermessliche zu treiben. Neben einer Verkleidung mit Stahlgewebe entschloss man sich letztendlich für einen Vorhang aus lammellenförmigen Betonelementen. In detailierter Arbeit wurden Form, Aussehen Abstände und Überstände sowie die technische Lösung diese zu befestiguen bestimmt. Dabei bin ich von der Überlegung ausgegangen, möglichst viel Ausblick und wenig Einblick zu gewährleisten und wählte so den Winkel der Elemente. Die Abstände wurden danach bestimmt, dass die Geschossdecken verdeckt sind und die Aussicht von den Fenstern möglichst frei bliebt; deshalb die zweifache Öffnung der Fassade. Ebenso wichtig war mir, die Fassade nur so weit aufzulösen wie nötig und nicht zu filligran wirken zu lassen. Die Lamellen sollten sich nicht zu weit von dem muralen Charakter der Steinfassade entfernen und vermittelnd wirken zwischen der transparenten Fläche und den Betonelementen. M it S imulationen i n 3 d w urde die fast eine Million teuere Fassade versucht zu erfahren, um die beste Gestaltung zu wählen. A uf der ersten Seite ist die echte Fassade, auf dieser Seite die Simulation zu sehen.